• 新登場
  • 新発売
  • 太陽光発電
NEW
全3戸

パークレジデンス高師緑地ひがし 第5次

価格 3,768万円 ~3,798万円
交通
豊鉄バス「弥生公園」停 徒歩約2分
所在地
豊橋市弥生町字中原13-32他

物件トップ

Kasetto Image6

 

 

物件詳細

〔第5次建売分譲完成予想図〕
南道路に面して日当たり良好の3邸が誕生します。
全邸、3台分の駐車スペース、太陽光発電搭載。
〔No.17〕リビング それぞれが好きなことをしていても、同じ空気感の中でつながっていられる安心感。 仕切りのない開放的なレイアウトが、家族の時間をより豊かに、よりフラットに変えてくれます。
〔No.17〕ダイニング お子様が今日学校であったことを一生懸命話す横で、ゆっくりと夕食を楽しむ贅沢。 どんなレストランよりも落ち着けるこの場所が、家族の絆をいっそう深めてくれます。
〔No.17〕キッチン 慌ただしい朝も、デザインの良いキッチンに立つだけで、不思議と「今日も頑張ろう」と思える。 今の感性にフィットする、機能美とスタイルを両立させた、自慢の場所です。
〔No.17〕畳コーナー リビングの一角に設けられたタタミコーナーは、絶好の家事サポート空間。 フローリングだと少し億劫な作業も、畳の上なら座ってゆったりとこなせます。
〔No.17〕主寝室 窓から差し込む柔らかな光と、視界に入るナチュラルな質感。 2つのベッドを並べても余裕のある空間は、週末に子どもたちが潜り込んできても大丈夫。 家族の笑顔のために、まずはパパとママが「しっかり整う」寝室づくりを。
〔No.17〕主寝室ウォークインクローゼット 忙しい共働き夫婦の朝を支える、ゆとりのウォークインクローゼット。 ハンガーパイプをL字に配置することで、夫婦それぞれの衣類を整理しやすく、一目で手持ちの服を把握できます。 「あれどこだっけ?」がなくなるだけで、朝の準備にゆとりと笑顔が生まれます。
〔No.17〕洋室B 一番日当たりのいいこの部屋を、子どもたちの特等席に。 明るい日差しは、朝の目覚めをスムーズにし、日中の学習意欲もそっと後押ししてくれます。
〔No.17〕洋室C お子様が成長して個室が必要になるまでは、趣味の部屋やゲストルームとして。 ライフスタイルの変化に柔軟に応える、シンプルだからこそ可能性が広がる一室です。
〔No.17〕洗面所 洗濯物を「干す・取り込む」時間を丸ごとカット。 洗面所にガス衣類乾燥機を配置すれば、夜に回して朝にはフカフカ、雨の日も花粉の季節も一切ストレスなし。※ガス衣類乾燥機用のスリーブを設置済みです。衣類乾燥機は設置されていません。
〔No.17〕玄関 ナチュラルな木目とモダンな小物の調和。 帰宅するたびに「この家が好きだな」と思える、丁寧な暮らしのプロローグがここから始まります。
渥美線「南栄」駅へ約1,350m(徒歩17分)。「クックマートユーアイ店」や「遠鉄ストア豊橋曙店」「オークワ豊橋ミラまち店」など、近隣にスーパーが複数あります。スーパーにより取扱い商品が違うのでショッピングが充実します。
弥生病院をはじめ、内科・歯科などの医療施設も近い距離にあるので、もしもの時に安心です。

おすすめポイント

◇ 全18区画の新街区 南道路4棟


◇ 栄小学校 / 南部中学校 校区


◇ 買物、医療などの生活利便施設が近隣に充実


◇ No16 太陽光発電システム搭載


◇ 駐車3台分のスペース 

設備仕様

太陽光発電
非常時給電システム
宅配ボックス
電動シャッター
食器洗浄乾燥機
浴室暖房乾燥機

保証・性能

耐震等級3
長期優良住宅
壁外断熱
高性能樹脂窓
50年保証+
50年点検

区画・間取り図

全体区画図
間取り図
No.16
No.16
販売価格 3,798万円 (税込)
間取り 3LDK
敷地面積 145.96m2 (44.15坪)
延床面積 94.83m2 (28.68坪)
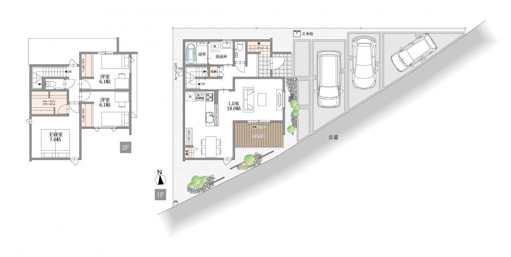
間取り図
No.17
No.17
販売価格 3,778万円 (税込)
間取り 3LDK
敷地面積 144.50m2 (43.71坪)
延床面積 95.03m2 (28.74坪)
間取り図
No.18
No.18
販売価格 3,768万円 (税込)
間取り 3LDK
敷地面積 153.90m2 (46.55坪)
延床面積 95.24m2 (28.81坪)
No.16
No.17
No.18
1 /20

保証・性能

  • 耐震等級3(最高ランク)

    耐震等級3は建築基準法(等級1)の1.5倍の耐震性能。震度7クラスの地震にも耐え、地震保険料も半額に。

  • 長期優良住宅

    国が定めた厳しい基準をクリアした快適な住まいを提供。税制優遇も受けられ、安心とお得を両立する「いい家」の基準。

  • 断熱等級5 ZEH基準

    高い断熱性能で光熱費を抑え、一年中快適な暮らしを実現。家計にも環境にも優しい、ZEH基準の分譲住宅です。

  • 壁外断熱工法

    壁外断熱工法は、柱の外側を断熱材で覆うため、高気密・高断熱を実現。結露や劣化を防ぎ、家が長持ちします。

  • 高性能樹脂窓

    高性能樹脂窓は、熱の流出を約6割削減。快適で経済的な暮らしを実現します。

  • ゼロソーラーサービス

    〔No16のみ搭載〕毎月定額の利用料を支払うだけで、発電した電気を自由に使うことができます。災害時にも日中電気を使えるため、ご家族の安全を守るための備えにもなります。

  • 50年点検・50年保証

    サーラ住宅は50年点検・保証で安心を提供。業界屈指のアフターサービスで、大切な住まいを長期サポートします。

  • 24時間受付対応

    アフターサービス専任チームと24時間緊急ダイヤルで、迅速かつ的確に対応します。

  • 省エネラベル

    ※No.16の性能を示すものであり、
    すべての住戸の性能を示すものではありません。

地図・周辺情報

周辺施設

  • 豊橋鉄道渥美線「南栄」駅

    豊橋鉄道渥美線「南栄」駅

  • 栄小学校

    栄小学校

  • 南部中学校

    南部中学校

  • クックマートユーアイ店

    クックマートユーアイ店

  • オークワ豊橋ミラまち店

    オークワ豊橋ミラまち店

  • 弥生病院

    弥生病院

周辺詳細情報

交通機関

  • 豊鉄バス「弥生公園」停:約115m、徒歩約2分
  • 豊橋鉄道渥美線「南栄」駅:約1,355m、徒歩約17分

教育施設

  • 曙幼稚園:約995m、徒歩約13分
  • 栄小学校:約1,380m、徒歩約18分
  • 南部中学校:約1,325m、徒歩約17分

ショッピング施設

  • クックマートユーアイ店:約320m、徒歩約4分
  • ファミリーマート豊橋弥生町店:約660m、徒歩約9分
  • オークワ豊橋ミラまち店:約960m、徒歩約12分
  • ココカラファイン三本木店:約545m、徒歩約7分
  • サンドラッグ豊橋曙店:約790m、徒歩約10分

金融機関

  • 豊川信用金庫弥生支店:約525m、徒歩約7分
  • 名古屋銀行豊橋ミラまち支店:約800m、徒歩約10分

医療機関

  • 弥生病院:約550m、徒歩約7分

その他

  • 弥生公園:約120m、徒歩約2分

物件概要

名称
パークレジデンス高師緑地ひがし 第5次
所在地
豊橋市弥生町字中原13-32他
交通
豊鉄バス「弥生公園」停 徒歩約2分
総区画数
18区画
今回販売戸数
3戸
価格
3,768万円~3,798万円 (税込)
建物面積
94.83m2~95.24m2(28.68坪~28.81坪)
敷地面積
144.50m2~153.90m2(43.71坪~46.55坪)
構造
木造軸組工法2階建
建物完成時期
2026年3月完成予定
引渡し可能時期
2026年4月予定
地目
宅地
都市計画区域
市街化区域
用途地域
第一種中高層住居専用地域
建築確認番号
[No.15]確認サービスKS124-0420-59003号(2025.11.11)他
道路・私道負担
公道南約5.2mアスファルト舗装
設備
電気(サーラeエナジー)、都市ガス(サーラE&L)、公営上水道、公共下水道
その他
※画像は完成予想パース図を使用しております。実際とは異なります。
取引態様
売主
お問い合わせ
豊橋営業所 愛知県豊橋市柱四番町6-1 TEL.0120-124-790
情報提供日
2026年2月2日
次回更新予定日
2026年2月16日
取引条件有効期限
2026年3月31日

お問い合わせはこちら

0120-124-790 受付/営業時間:10:00~17:00 
定休日:火曜日・水曜日

周辺の物件

パークレジデンス高師緑地ひがし 第4次
  • 価格改定
  • レジリエンス分譲
  • 愛知県豊橋市

    パークレジデンス高師緑地ひがし 第4次

    価格3,698万円~3,850万円

    パークレジデンス高師緑地ひがし 第3次
  • 価格改定
  • レジリエンス分譲
  • モデルハウス分譲
  • 愛知県豊橋市

    パークレジデンス高師緑地ひがし 第3次

    価格3,948万円

    サーラガーデン南栄駅ひがしⅣ

    愛知県豊橋市

    サーラガーデン南栄駅ひがしⅣ

    価格3,495万円

    サーラタウン西幸町Ⅴ2次
  • 価格改定
  • 愛知県豊橋市

    サーラタウン西幸町Ⅴ2次

    価格4,198万円

    最近チェックした物件