• 補助金対象
  • 即入居可
  • 太陽光発電
全2戸

三ツ相町Ⅱ

価格 3,620万円 ~3,630万円
交通
JR飯田線「船町」駅 徒歩約12分
豊鉄バス「吉川町」停 徒歩約5分
所在地
豊橋市三ツ相町249番7他

物件トップ

物件詳細

できたばかりの新しい街並みを、
ぜひ現地でご体感ください。

平日のご見学も、事前にご予約いただければ対応いたします。

ご家族でも、お一人でも、お気軽にお越しください。
【No.1・No.2号棟 外観】
統一感のある街並みに、個性の異なる2邸が並ぶ分譲地。
落ち着いた色合いの外観が、住まい全体に上質な印象を与えます。
【No.2号棟 外観】
グレージュ系の外壁がやわらかな印象を与える、落ち着いた佇まいのNo.2号棟。
駐車スペースも広く、毎日の車の出入りもスムーズです。
【No.1号棟 外観】
白×ブラックのコントラストが印象的な、すっきりとしたモダンな外観です。
シンプルながら存在感のあるデザインに仕上がっています。
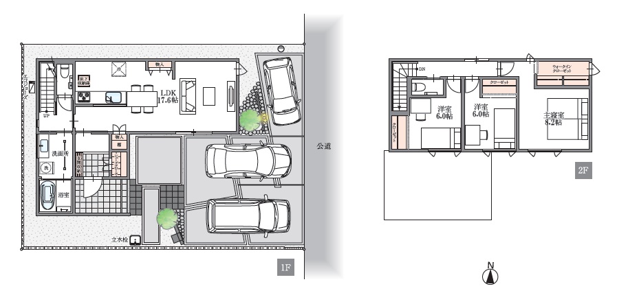
【No.1号棟 LDK】
南側の大きな窓から光が入る、明るく開放的なLDK。
リビング・ダイニング・キッチンがゆるやかにつながり、
家族が自然と集まる空間です。
【No.1号棟 ダイニング】
大きな窓からやわらかな光が入る、心地よいダイニング空間。
キッチンと近く、食事の準備や片付けもしやすい配置です。
【No.1号棟 ダイニング・パントリー】
キッチン奥には、食品や日用品をしまえる便利なパントリーを設けました。
ダイニングからも使いやすく、暮らしをすっきり整えやすい空間です。
【No.1号棟 キッチン】
木目調のキッチンが空間にあたたかみを添えます。
ダイニングやリビングを見渡しやすく、家族との会話も楽しめる配置です。
【No.1号棟 キッチン】
作業スペースが広く、毎日の料理がしやすいキッチン。
収納も備え、調理器具や食器類をすっきり片付けられます。
【No.1号棟 洗面】
白を基調とした清潔感のある洗面スペース。
鏡裏や下部収納を活用でき、日用品をすっきり整えられます。
【No.1号棟 脱衣室】
室内物干しを備えた脱衣室。
天候や時間帯を気にせず洗濯物を干せる、
忙しい毎日にうれしい家事ラク空間です。
【No.1号棟 浴室】
落ち着いたアクセントパネルを採用した浴室。
一日の疲れをゆっくり癒せる、くつろぎのバスタイムを演出します。
【No.1号棟 主寝室】
グレーのアクセントクロスが落ち着いた雰囲気をつくる主寝室。
ゆとりある広さで、ベッドを置いてもくつろげる空間です。
【No.1号棟 ウォークインクローゼット】
衣類や季節物をまとめて収納できるウォークインクローゼット。
居室をすっきり保ちやすく、毎日の身支度も快適です。
【No.1号棟 玄関】
明るくすっきりとした玄関スペース。
収納も備え、家族の靴や小物を整えやすい、
気持ちよく迎え入れる空間です。
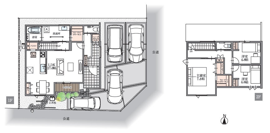
【No.2号棟 LDK】
ワイドな窓から光が入る、開放感のあるLDK。
家具を置いてもゆとりがあり、家族でのびのび過ごせる空間です。
【No.2号棟 キッチン・LDK収納】
キッチン横に収納を備えた、使い勝手のよいLDK。
食品ストックや日用品をしまいやすく、暮らしをすっきり整えられます。
【No.2号棟 主寝室】
落ち着いたアクセントクロスが印象的な主寝室。
横長の窓から自然光を取り込み、穏やかに過ごせる空間です。
【No.2号棟 ウォークインクローゼット】
主寝室に隣接したウォークインクローゼット。
衣類やバッグ、季節用品までまとめて収納でき、住空間を広く使えます。
【No.2号棟 宅配ボックス】
不在時の荷物受け取りに便利な宅配ボックス付き。
外構の植栽も美しく、玄関まわりに上品な印象を添えています。

おすすめポイント

落ち着いた住環境と暮らしやすさを兼ね備えた
「サーラガーデン三ツ相町Ⅱ」分譲住宅、残り2邸となりました。


家族が自然と集まるLDKを中心に、
使いやすい水まわり動線や収納計画にも配慮した住まい。
毎日の家事がスムーズに進み、ゆとりある暮らしを叶えます。


JR飯田線「船町」駅まで徒歩約12分。
子育て世代はもちろん、将来を見据えた住まい選びにもおすすめです。

設備仕様

太陽光発電
宅配ボックス
玄関タッチキー
食器洗浄乾燥機
浄水器
浴室暖房乾燥機

保証・性能

補助金対象
耐震等級3
長期優良住宅
ZEH基準適合
壁外断熱
高性能樹脂窓
50年保証+
50年点検

区画・間取り図

全体区画図
区画図
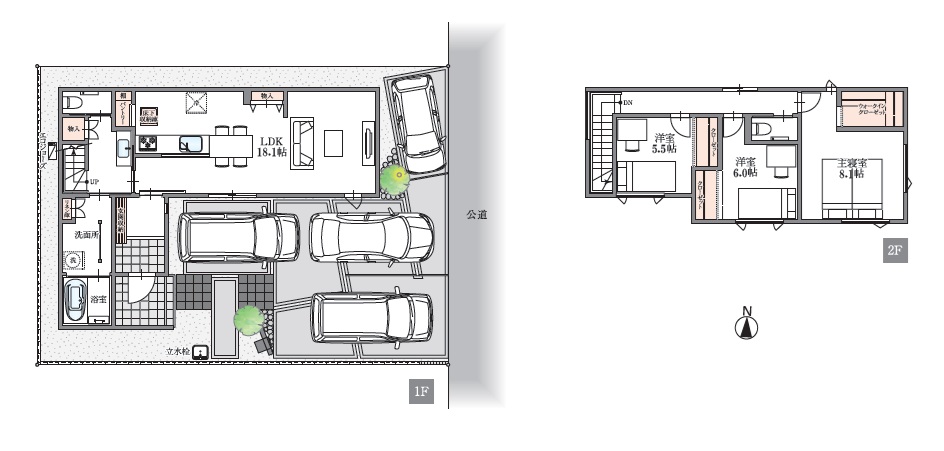
間取り図
No.1
No.1
販売価格 3,620万円 (税込)
間取り 3LDK
敷地面積 145.28m2 (43.94坪)
延床面積 99.38m2 (30.06坪)
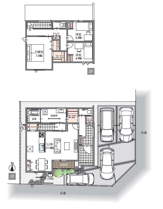
間取り図
No.2
No.2
販売価格 3,630万円 (税込)
間取り 3LDK
敷地面積 145.73m2 (44.08坪)
延床面積 95.66m2 (28.93坪)
No.1
No.2
1 /20

設備仕様

  • システムキッチン クリナップ「ステディア I型」

    上質なマット扉と美しい人工大理石シンクが魅力のステディアキッチン。
    スタイリッシュな浄水器一体型水栓や、
    拭き取りやすいガラストップコンロ、
    お手入れ簡単なスリムレンジフードなど、
    機能性とデザイン性を兼ね備えた快適な空間です。

  • システムバス リクシル「AX」

    浴室暖房乾燥機(ガス)付きなので、
    お天気の悪い日や花粉の時期に洗濯物を乾かすのに便利です。
    エコベンチ浴槽は半身浴を楽しんだり、
    小さなお子様を抱いて入りやすく、節水にもなります。

  • 洗面化粧台 リクシル「EV」

    ハネを防ぐキレイアップカウンターと、
    汚れがたまりにくい新てまなし排水口でお手入れ簡単。
    水上から吐水するキレイアップ水栓や、
    収納力のある三面鏡、エコハンドルなど、
    使いやすさと省エネ性も兼ね備えた高機能洗面化粧台です。

  • トイレ リクシル「ベーシアハーモL/ベーシア」

    便器のフチを丸ごとなくし、便座のつぎ目をなくしているので、お掃除らくらく。
    従来品※(大13L)と比べ約69%節水を実現。
    大切な水をムダなく賢く節約します。

保証・性能

  • 耐震等級3(最高ランク)

    耐震等級3は建築基準法(等級1)の1.5倍の耐震性能。
    震度7クラスの地震にも耐え、地震保険料も半額に。

  • 長期優良住宅

    国が定めた厳しい基準をクリアした快適な住まいを提供。
    税制優遇も受けられ、安心とお得を両立する「いい家」の基準。

  • 断熱等級5 ZEH基準

    高い断熱性能で光熱費を抑え、一年中快適な暮らしを実現。
    家計にも環境にも優しい、ZEH基準の分譲住宅です。

  • 壁外断熱工法

    壁外断熱工法は、柱の外側を断熱材で覆うため、
    高気密・高断熱を実現。
    結露や劣化を防ぎ、家が長持ちします。

  • 高性能樹脂窓

    高性能樹脂窓は、熱の流出を約6割削減。
    快適で経済的な暮らしを実現します。

  • 50年点検・50年保証

    サーラ住宅は50年点検・保証で安心を提供。
    業界屈指のアフターサービスで、
    大切な住まいを長期サポートします。

  • 設備10年保証

    毎日使う設備機器も安心の10年保証。
    出張修理や部品交換も無償です。

    ※一部保証対象外となる事項がございます。

  • 24時間受付対応

    アフターサービス専任チームと24時間緊急ダイヤルで、
    迅速かつ的確に対応します。

  • ゼロソーラーサービス

    毎月定額の利用料を支払うだけで、発電した電気を自由に使うことができます。
    災害時にも日中電気を使えるため、ご家族の安全を守るための備えにもなります。

  • 建築物省エネ表示制度

    ※販売住戸が複数の場合、
    本ラベルは特定の住戸の性能を示すものであり
    全ての住戸の性能を示すものではありません。

地図・周辺情報

周辺施設

  • JR飯田線「船町」駅

    JR飯田線「船町」駅

  • 吉田方保育園

    吉田方保育園

  • 吉田方小学校

    吉田方小学校

  • JAファーマーズマーケット吉田方店

    JAファーマーズマーケット吉田方店

  • セブンイレブン豊橋三ツ相町店

    セブンイレブン豊橋三ツ相町店

  • 三ツ相公園

    三ツ相公園

周辺詳細情報

交通機関

  • JR飯田線「船町」駅:約890m 徒歩12分
  • 豊鉄バス「吉川町」停:約345m 徒歩5分

教育施設

  • 吉田方保育園:約400m 徒歩5分
  • 吉田方小学校:約490m 徒歩7分
  • 吉田方中学校:約1,800m 徒歩23分

ショッピング施設

  • V・drug豊橋菰口店:約665m 徒歩9分
  • JAファーマーズマーケット吉田方店:約625m 徒歩8分
  • ドミー渡津店:約1,230m 徒歩16分
  • セブンイレブン豊橋三ツ相町店:約535m 徒歩7分

金融機関

  • 豊川信用金庫菰口支店:約720m 徒歩9分
  • 豊橋吉川郵便局:約350m 徒歩5分
  • JA豊橋吉田方支店:約565m 徒歩8分

医療機関

  • よしだがたファミリー歯科クリニック:約365m 徒歩5分

その他

  • 三ツ相公園:約280m 徒歩4分

物件概要

名称
三ツ相町Ⅱ
所在地
豊橋市三ツ相町249番7他
交通
JR飯田線「船町」駅 徒歩約12分
豊鉄バス「吉川町」停 徒歩約5分
総区画数
3区画
今回販売戸数
2戸
価格
3,620万円~3,630万円 (税込)
建物面積
95.66m2~99.38m2(28.93坪~30.06坪)
敷地面積
145.28m2~145.73m2(43.94坪~44.08坪)
構造
木造軸組工法2階建
建物完成時期
2026年4月
引渡し可能時期
即引渡可
地目
宅地
都市計画区域
市街化区域
用途地域
準工業地域
建築確認番号
確認サービス第KS125-0420-59568号他
道路・私道負担
公道東約4.0mアスファルト舗装
設備
電気(サーラeエナジー)、都市ガス(サーラE&L)、公共上下水道、雨水(側溝)
その他
宅地造成及び特定盛土等規制法
大規模集客施設制限地区
取引態様
売主
お問い合わせ
豊川営業所 愛知県豊川市豊川町知通63-1 サーラプラザ豊川内 TEL.0120-84-5734
情報提供日
2026年5月14日
次回更新予定日
2026年5月28日
取引条件有効期限
2026年6月30日

お問い合わせはこちら

0120-84-5734 受付/営業時間:10:00~17:00 
定休日:火曜日・水曜日

周辺の物件

【高耐候】牟呂公文町II
  • 新発売
  • 補助金対象
  • 愛知県豊橋市

    【高耐候】牟呂公文町II

    価格3,960万円~3,980万円

    New
    【高耐候】東脇一丁目III
  • 予告広告
  • 愛知県豊橋市

    【高耐候】東脇一丁目III

    価格未定

    西口町Ⅲ
  • 補助金対象
  • 愛知県豊川市

    西口町Ⅲ

    価格3,898万円

    牛久保駅北 第1次
  • 予告広告
  • 補助金対象
  • 愛知県豊川市

    牛久保駅北 第1次

    価格未定

    最近チェックした物件