• モデルハウス分譲
全1戸

サーラタウン豊田市本地町

価格 5,438万円 ~5,673万円
交通
名鉄バス「美山町」停 徒歩15分
所在地
豊田市本地町3丁目32-2

物件トップ

パントリーの中に「冷蔵庫スペース」を設けました。

キッチンレイアウトにこだわった1邸です。

リビングエアコンと1階カーテンが付属。

初期費用をおさえられるのも嬉しいポイント!

事前予約でご案内いたします。

暖かさをご体感ください。

Kasettto Image2

 

キャンペーン開催中!!

期間中 №8号棟をご成約いただくと

家具・カップボード・エアコンなど50万円相当の特典をプレゼント。

・紫外線や風雨による劣化に強い屋根と外壁(30年間、塗直し不要)

・震度7の振れを89%吸収。制振フレーム「MAMORY」を搭載

(※60年間メンテナンスフリーの耐震機構)

Kasettto Image2

 

エアコン1台、1階にカーテン・ブラインド付き。

ランドリールームに「乾太くん」。

ご入居したその日から快適にお過ごしいただけます。

 

フィールリスタ豊田店 徒歩10(750m)

美山小学校 徒歩12(950m)

東名高速道路 豊田IC 車5分(2200m)

Kasetto Image6

〔高耐候仕様〕
30
年間大規模なメンテナンスが不要に!

修繕工事に足場が必要となる部材をすべて30年の耐久性を持つものに揃えた「高耐候仕様」でメンテナンスコストを大幅に削減。10年後、20年後のコストを抑え、お財布にも優しい住まいを実現しました。

物件詳細

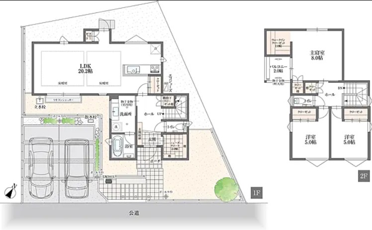
No.8 LDK(18.1帖)
帰宅後、ほっと息をつける広々としたリビングダイニング。
上質な木目が温かみを感じさせ、心を解きほぐす空間に。
お料理しながら会話ができるキッチンは、家族との時間を大切にする方にぴったりです
No.8 シューズクローク
収納力たっぷりのシューズクローク
レインコートやカサを掛けておけるポールが便利です。
【キャンペーン開催中!】
期間内に対象物件をご契約のお客様に家具・カーテン・エアコンなどの特典があります。(詳細は担当営業へご確認下さい)
No.8 タタミコーナー(4.5帖)
仕事と育児を両立する共働き世帯にとって、「マルチに使える空間」は貴重です。
お子さまのお昼寝スペースとして、あるいはテレワークや読書の場としても活用可能です。
No.8 キッチン
スタイリッシュなオープンキッチンからは、家族の笑顔が見渡せます。
日常の中に、特別な時間が自然と生まれます。
No.8 主寝室(9.2帖)
高台ならではの景色が窓から見える、ホテルライクな上質空間。大容量のウォークインクローゼット付きで、衣類や小物も美しく整います。
No.8 バルコニー
雨の日のお洗濯も安心の、インナーバルコニー。
遠く市街地を臨める、高台ならではの開放感。
No.8 ランドリールーム
ガス式衣類乾燥機「乾太くん」が標準装備。
低コストでお洗濯ものがふんわり仕上がる、
満足のお声が高い設備です。
No.8 キッチンパントリー
冷蔵庫専用スペースがあるパントリー。
見せない収納で、キッチンはいつもすっきりです。
【№7外観】
高台に立地。外からの人の目が気になりません。
【№6外観】
高台に立地。外からの人の目が気になりません。
【№8外観】
高台に立地。外からの人の目が気になりません。

おすすめポイント

 東名高速道路「豊田IC」まで車で4分。各方面へアクセス良好な立地


● 国道153「豊田北バイパス」すぐ(三好、東郷、日進方面へのアクセスも良好)


● 国道155「豊田南バイパス」すぐ(知立、刈谷、安城方面へのアクセスも良好)


● トヨタ自動車様各工場へのアクセス良好(元町工場、三好工場、下山工場、堤工場、、、)


● 東名高速道路「豊田IC」まで車で7分。


  前面道路より敷地が高いため外からの目線が気になりません

設備仕様

宅配ボックス
電動シャッター
EV充電用
コンセント
食器洗浄乾燥機
浄水器
浴室暖房乾燥機

保証・性能

耐震等級3
制震システム
長期優良住宅
ZEH基準適合
断熱性能等級5
壁外断熱
高性能樹脂窓
モデルハウス分譲
50年保証+
50年点検

区画・間取り図

区画図
区画図
間取り図
No.8
No.8
販売価格 5,438万円 (税込)
間取り 4LDK+シューズクローク+ウォークインクローゼット
敷地面積 172.87m2 (52.29坪)
延床面積 115.94m2 (35.07坪)
備考 冷蔵庫をパントリーに。キッチンをすっきり美しく!
ガス衣類乾燥機・エアコン1台・1階にカーテン
間取り図
№6
№6
販売価格 5,673万円 (税込)
間取り 3LDK+シューズクローク+ウォークインクローゼット
敷地面積 172.71m2 (52.24坪)
延床面積 104.35m2 (31.56坪)
備考 広々LDK20.2帖
間取り図
№7
№7
販売価格 5,550万円 (税込)
間取り 3LDK+納戸+シューズクローク+ウォークインクローゼット
敷地面積 171.42m2 (51.85坪)
延床面積 109.22m2 (33.03坪)
備考 1階の収納充実
No.8
№6
№7
1 /20

保証・性能

  • 耐震等級3(最高ランク)

    耐震等級3は建築基準法(等級1)の1.5倍の耐震性能。震度7クラスの地震にも耐え、地震保険料も半額に。

  • 長期優良住宅

    国が定めた厳しい基準をクリアした快適な住まいを提供。税制優遇も受けられ、安心とお得を両立する「いい家」の基準。

  • 高耐候仕様

    劣化しにくい製品で30年間、大規模メンテナンス不要。手間とコストを大幅に削減します。

  • 断熱等級5 ZEH基準

    高い断熱性能で光熱費を抑え、一年中快適な暮らしを実現。家計にも環境にも優しい、ZEH基準の分譲住宅です。

  • 壁外断熱工法

    壁外断熱工法は、柱の外側を断熱材で覆うため、高気密・高断熱を実現。結露や劣化を防ぎ、家が長持ちします。

  • 高性能樹脂窓

    高性能樹脂窓は、熱の流出を約6割削減。快適で経済的な暮らしを実現します。

  • ゼロソーラーサービス

    毎月定額の利用料を支払うだけで、発電した電気を自由に使うことができます。災害時にも日中電気を使えるため、ご家族の安全を守るための備えにもなります。

  • 50年点検・50年保証

    サーラ住宅は50年点検・保証で安心を提供。業界屈指のアフターサービスで、大切な住まいを長期サポートします。

  • 24時間受付対応

    アフターサービス専任チームと24時間緊急ダイヤルで、迅速かつ的確に対応します。

  • 建築物省エネ表示制度

    ※本ラベルは特定の住戸の性能を示すものであり全ての住戸の性能を示すものではありません。

地図・周辺情報

周辺施設

  • 美山小学校

    美山小学校

  • 逢妻中学校

    逢妻中学校

  • 久保田クリニック(内科)

    久保田クリニック(内科)

  • もりもりこどもクリニック(小児科)

    もりもりこどもクリニック(小児科)

  • 名鉄「土橋」駅

    名鉄「土橋」駅

  • 名鉄バス「東名豊田」停

    名鉄バス「東名豊田」停

周辺詳細情報

交通機関

  • 名鉄バス「美山町」停:約1,200m
  • 名鉄三河線「土橋」駅:約2,750m

教育施設

  • 美山小学校:約950m
  • 逢妻中学校:約1,700m

ショッピング施設

  • フィールリスタ豊田店:約750m
  • ドンキ・ホーテUNY豊田元町店:約2,200m
  • セブンイレブン豊田美山店:約1,000m

金融機関

  • 豊田信用金庫 田中支店:約1,000m

医療機関

  • 久保田クリニック:約,1000m
  • ふじやま内科:約800m

その他

  • 本地町東ちびっ子広場:約190m

物件概要

名称
サーラタウン豊田市本地町
所在地
豊田市本地町3丁目32-2
交通
名鉄バス「美山町」停 徒歩15分
総区画数
9区画
今回販売戸数
1戸
価格
5,438万円~5,673万円 (税込)
建物面積
104.35m2~115.94m2(31.56坪~35.07坪)
敷地面積
171.41m2~172.87m2(51.85坪~52.29坪)
構造
木造2階建て
建物完成時期
2025年7月23日(建物完成日)
引渡し可能時期
即入居可
地目
宅地
都市計画区域
市街化区域
用途地域
準工業地域
建築確認番号
確認サービス第KS125-0410-50839号
開発総面積
2,54103㎡
開発許可番号
豊開調発 第 051-135号
道路・私道負担
6〜6.5m(アスファルト舗装)
設備
東邦電気・都市ガス・公営上水道・公共下水道・雨水貯留槽(側溝)
取引態様
売主
お問い合わせ
岡崎展示場 愛知県岡崎市昭和町木舟25番地 岡崎中日ハウジングセンター TEL.0120-397-330
情報提供日
2026年3月8日
次回更新予定日
2026年3月22日
取引条件有効期限
2026年3月30日

お問い合わせはこちら

0120-397-330 受付/営業時間:10:00~17:00 
定休日:火曜日・水曜日

周辺の物件

サーラタウンプレステージ三好丘緑分譲
  • 即入居可
  • 愛知県みよし市

    サーラタウンプレステージ三好丘緑分譲

    価格5,886万円~6,034万円

    サーラタウン豊田市花園2次

    愛知県豊田市

    サーラタウン豊田市花園2次

    価格5,998万円

    サーラタウン白土南 せせらぎの道
  • 即入居可
  • レジリエンス分譲
  • 愛知県愛知郡東郷町

    サーラタウン白土南 せせらぎの道

    価格4,879万円~5,078万円

    サーラタウン天白土原
  • 即入居可
  • 愛知県名古屋市天白区

    サーラタウン天白土原

    価格4,699万円

    最近チェックした物件