サーラタウンプレステージ知多半田駅南
物件トップ

2期1次分譲完売
モデルハウスの4邸をご覧いただけます。
駐車場を完備しておりますので
ご家族、ご友人、小さなお子さま達もご一緒に
たっぷり新築の家をご覧くださいませ。
~秋のプレミアム住まいフェア~
新生活で必要な家具やカーテンなどの
特典を最大50万円相当プレゼント
新しい季節、理想の住まいで
新生活をスタートしませんか?
※対象物件、特典内容などの詳細は、
お問い合わせください。

太陽光発電システム(サーラのゼロソーラーサービス)
サブスク型太陽光発電搭載!
月額4,000円(税抜)で発電した電気を定額利用可能。
10年後には売電収入も得られます。

JR武豊線・名鉄河和線の2線が利用可能。「中部国際空港」行きバス停まで徒歩11分。
●名鉄河和線「成岩駅」まで徒歩7分(530m)
●名鉄河和線「知多半田駅」まで徒歩11分(820m)
●JR武豊線「半田駅」まで徒歩16分(1260m)

【半田市同胞園保育所】
徒歩2分の場所に保育園。0歳児18名、1歳児40名、2歳児42名、3歳児60名、4歳児…60名、5歳児…60名。定員合計280名の保育園。母子支援施設を併設しています。

【こうせい公園】
こうせい公園まで徒歩9分。遊具やトイレを備えた知多半田駅に近くにある大型公園。お子様がのびのびと遊ぶことができる広いスペースが魅力です。

【壁外断熱工法】
お家をまるごと断熱し、快適な住まいをご提供します。

【ロングライフ50】
最長50年保証+50年無償点検
建てて終わりではなく、一生のお付き合いをお約束します。

【長期優良住宅】
サーラの建物は長く安心して暮らせる高性能住宅。
税金の優遇もございます。

☆お得に住宅をご検討いただけるチャンス!
子育てグリーン住宅支援事業補助金
80万円の補助金対象物件です。(No.4,12,13の3棟のみ)

物件詳細
おすすめポイント
◇名鉄河和線「知多半田」駅、「成岩」駅、JR武豊線「半田」駅の3駅が徒歩利用可能
◇小学校、中学校まで徒歩10分以内と教育施設が整った子育て環境に適したエリア
◇クラシティ半田まで徒歩11分
設備仕様






コンセント

インターホン


コンロ



保証・性能








50年点検
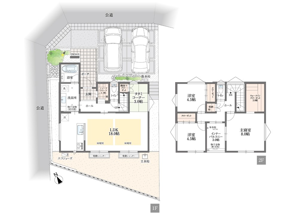
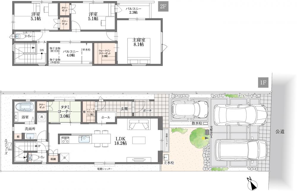
区画・間取り図

設備仕様
-
システムキッチン
クリナップステディア(クラス5)のセミフラット型キッチン。
(物件によって色が異なる場合がございます) -
食器洗い乾燥機+オールスライド収納
家族2,3人分の食器が一度に洗えるビルトイン食洗器付き。
収納量もかなり豊富です。 -
3口ガラストップコンロ
プッシュ点火式なので、操作がラクラク。
-
オールステンレスキャビネット
水・油汚れ、サビ、熱にも強く、カビやニオイもつきにくいオールステンレスキャビネット。
-
人工大理石ワークトップ
耐久性に優れており、油汚れもさっと拭き取ることが可能です。
-
洗面化粧台
3面鏡のミラーキャビネットやサイドキャビネット付き。
収納が多いと安心ですね(物件によって色や収納サイズが異なる場合がございます) -
1階トイレ
LIXILのベーシアピタ。お掃除リフトアップ機能も付いている為、掃除しにくい隙間の汚れも拭き取れます。
(物件によって色が異なる場合がございます) -
ユニットバス
1616サイズのユニットバス。浴室暖房乾燥機付きなので、雨の日でもお洗濯物が乾きます。
(物件によって色が異なる場合がございます) -
郵便ポスト+宅配ボックス
共働きの方にも安心。
収納量も豊富です。 -
玄関ドア ポケットキーシステム
リモコンキーやタグキーが備え付け。
ポケットに入れたままハンドルボタンを押すだけで鍵の開け閉めが出来ます。 -
電動シャッター
リモコン操作でラクラク。
ストレスなく住み続けて頂くことが可能です。 -
最長50年保証・50年無償点検
建てて終わりではなく一生のお付き合いをお約束します。
保証・性能
-
耐震等級3(最高ランク)
耐震等級3は建築基準法(等級1)の1.5倍の耐震性能。震度7クラスの地震にも耐え、地震保険料も半額に。
-
長期優良住宅
国が定めた厳しい基準をクリアした快適な住まいを提供。税制優遇も受けられ、安心とお得を両立する「いい家」の基準。
-
断熱等級5 ZEH基準
高い断熱性能で光熱費を抑え、一年中快適な暮らしを実現。家計にも環境にも優しい、ZEH基準の分譲住宅です。
-
壁外断熱工法
壁外断熱工法は、柱の外側を断熱材で覆うため、高気密・高断熱を実現。結露や劣化を防ぎ、家が長持ちします。
-
高性能樹脂窓
高性能樹脂窓は、熱の流出を約6割削減。快適で経済的な暮らしを実現します。
-
ゼロソーラーサービス
毎月定額の利用料を支払うだけで、発電した電気を自由に使うことができます。災害時にも日中電気を使えるため、ご家族の安全を守るための備えにもなります。
-
50年点検・50年保証
サーラ住宅は50年点検・保証で安心を提供。業界屈指のアフターサービスで、大切な住まいを長期サポートします。
-
24時間受付対応
アフターサービス専任チームと24時間緊急ダイヤルで、迅速かつ的確に対応します。
-
建築物省エネ表示制度
※本ラベルは特定の住戸の性能を示すものであり全ての住戸の性能を示すものではありません。
地図・周辺情報
周辺施設
-
名鉄河和線「知多半田」駅
-
名鉄河和線「成岩」駅
-
JR武豊線「半田」駅
-
クラシティ
-
こうせい公園
-
高川クリニック
周辺詳細情報
交通機関
- 名鉄河和線「知多半田」駅:約820m、徒歩約11分
- 名鉄「成岩」駅:約530m、徒歩約7分
- JR武豊線「半田」駅:約1,260m、自転車約5分
- ならワゴン「ちた栄町支店」停:約260m、徒歩約4分
教育施設
- 半田同胞園保育所:約330m、徒歩約5分
- 協和保育園:約850m、徒歩約11分
- 成岩小学校:約590m、徒歩約8分
- 成岩中学校:約450m、徒歩約6分
ショッピング施設
- スギ薬局中町店:約330m、徒歩約5分
- クスリのアオキ成岩店:約390m、徒歩約5分
医療機関
- 中町クリニック:約330m、徒歩約4分
- 高川クリニック:約470m、徒歩約6分
その他
- こうせい公園:約540m、徒歩約7分
- 半田協和郵便局:約480m、徒歩約6分
物件概要
No.12 2025年3月完成済
No.4,No.13 2025年4月完成済

25年10月18日(土) ~25年10月19日(日) 10:00〜17:00
25年10月18日(土)
~25年10月19日(日)
10:00〜17:00
お待ちしております。
お問い合わせはこちら
定休日:火曜日・水曜日