サーラタウン プレステージ於大公園南
物件トップ

【最新ニュース・建売分譲6次がスタート】
W-16・W-37現地でご内覧いただけます。新プランW-25・W-26完成予想図公開!
販売センター/冷房・トイレ完備・ベビーチェアあり。
小さなお子さまや赤ちゃんとご一緒の見学も大歓迎です!
~秋のプレミアム住まいフェア~
新生活で必要な家具やカーテンなどの
特典を最大50万円相当プレゼント
新しい季節、理想の住まいで
新生活をスタートしませんか?
※対象物件、特典内容などの詳細は、
お問い合わせください。

太陽光発電システム(サーラのゼロソーラーサービス)
サブスク型太陽光発電搭載!
月額4,000円(税抜)で発電した電気を定額利用可能。
10年後には売電収入も得られます。

【あしたがすき保育園・石浜西公園・子育て支援施設「うららん」】
保育園と公園まで徒歩1分。子育て支援施設「うららん」まで徒歩5分。お子様とご家族が伸びやかに過ごせる場所がすぐ近くにあります。

【イオンモール東浦】
映画館を併設した大型ショッピングモールまで車で4分。東浦町役場の窓口の施設内に備えています。

【於大公園】
於大公園まで徒歩18分。芝生広場やアスレチック広場などご家族で過ごせる大型公園です。

物件詳細
おすすめポイント
【分譲地の特徴】
◇ 全66区画の大型分譲地
◇ 大府市、刈谷市、半田市へ好アクセス
◇ 津波災害等ハザードマップエリア外の安心
◇ イオンモール東浦まで車で約8分
◇ 分譲地のすぐ隣に「あしたがすき保育園」新設
◇ まちなみガイドラインで統一される美しい街並み
【サーラ住宅の特徴】
◇「ZEH基準適合建物」での高い省エネ性を実現
◇ 夏は涼しく冬は暖かい「壁外断熱工法」
◇ 熱を逃がさず遮音性の高い「高性能樹脂窓」
◇ 優れた耐震性「耐震等級3(最高等級)」
◇全棟「長期優良住宅」の高性能を誇る分譲住宅
◇ 安心・安全の「最長50年保証+50年点検」
設備仕様






コンセント

インターホン


コンロ



保証・性能








50年点検
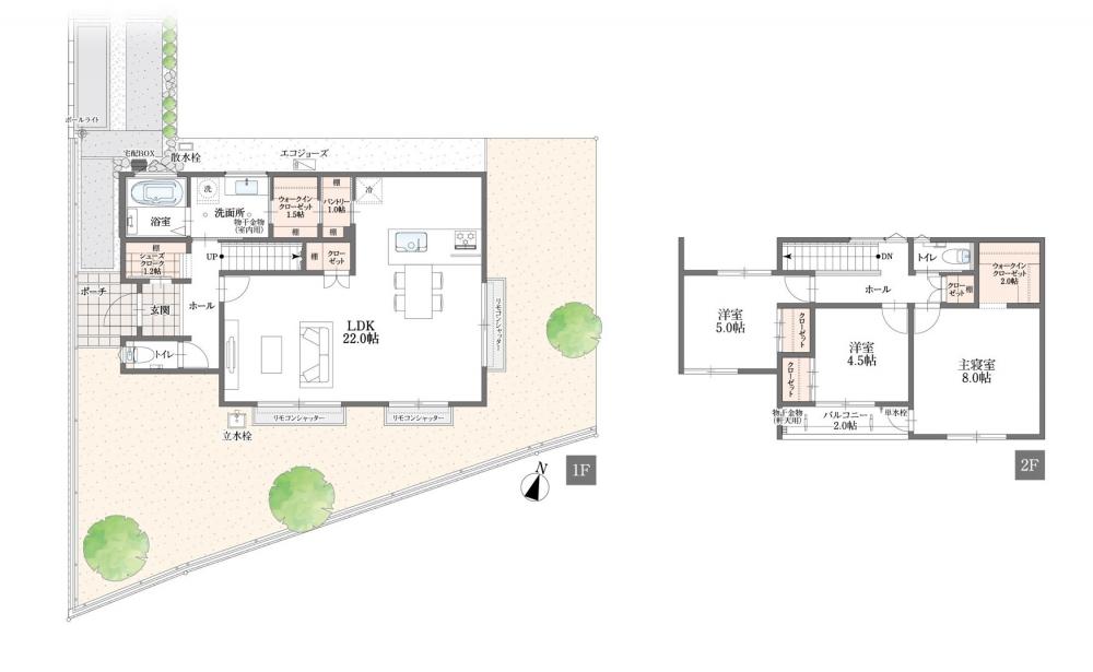
区画・間取り図

設備仕様
-
システムキッチン
クリナップステディア(クラス5)のキッチン
(物件によって色が異なる場合がございます) -
食洗機+オールスライド収納
家族2,3人分の食器が1度に洗えるビルトイン食洗機付き
収納量もかなり豊富です。 -
3口ガラストップコンロ
プッシュ点火式なので、操作がラクラク。
-
オールステンレスキャビネット
水・油汚れ、サビ、熱にも強く、カビやニオイもつきにくいオールステンレスキャビネット。
-
人工大理石ワークトップ
耐久性に優れており、油汚れもさっと拭き取ることが可能です。
-
洗面化粧台
3面鏡のミラーキャビネットや横幅300mmのサイドキャビネット付き。
(物件によって色やサイドキャビネットのサイズが異なる場合がございます) -
1階トイレ
LIXILのベーシアピタ。お掃除リフトアップ機能も付いている為、掃除しにくい隙間の汚れも拭き取れます。
(物件によって色が異なる場合がございます) -
ユニットバス
1616サイズの浴室暖房乾燥機付き。
(物件によって色が異なる場合がございます) -
郵便ポスト+宅配ボックス
共働きの方にも安心。
収納量も豊富です。 -
玄関ドア ポケットキーシステム
リモコンキーやタグキーが備え付け。
ポケットに入れたままハンドルボタンを押すだけで開閉が可能です。 -
電動シャッター
リモコン操作でラクラク。ストレスなく住み続けて頂くことが可能です。
-
太陽光発電システム(ゼロソーラーサービス)
初期設置費用0円・停電時も電気使用可能・モジュール出力25年保証・周辺機器15年保証。
-
最長50年保証・50年無償点検
建てて終わりではなく一生のお付き合いをお約束します。
保証・性能
-
耐震等級3(最高ランク)
耐震等級3は建築基準法(等級1)の1.5倍の耐震性能。震度7クラスの地震にも耐え、地震保険料も半額に。
-
長期優良住宅
国が定めた厳しい基準をクリアした快適な住まいを提供。税制優遇も受けられ、安心とお得を両立する「いい家」の基準。
-
断熱等級5 ZEH基準
高い断熱性能で光熱費を抑え、一年中快適な暮らしを実現。家計にも環境にも優しい、ZEH基準の分譲住宅です。
-
壁外断熱工法
壁外断熱工法は、柱の外側を断熱材で覆うため、高気密・高断熱を実現。結露や劣化を防ぎ、家が長持ちします。
-
高性能樹脂窓
高性能樹脂窓は、熱の流出を約6割削減。快適で経済的な暮らしを実現します。
-
ゼロソーラーサービス
毎月定額の利用料を支払うだけで、発電した電気を自由に使うことができます。災害時にも日中電気を使えるため、ご家族の安全を守るための備えにもなります。
-
50年点検・50年保証
サーラ住宅は50年点検・保証で安心を提供。業界屈指のアフターサービスで、大切な住まいを長期サポートします。
-
24時間受付対応
アフターサービス専任チームと24時間緊急ダイヤルで、迅速かつ的確に対応します。
-
建築物省エネ表示制度
※本ラベルは特定の住戸の性能を示すものであり全ての住戸の性能を示すものではありません。
地図・周辺情報
周辺詳細情報
交通機関
- 東浦町運行バス「県営東浦住宅」停:約240m、徒歩約3分
- JR武豊線「石浜」駅:約1,510m、徒歩約19分、自転車約8分
教育施設
- あしたがすき保育園:約190m、徒歩約3分
- 石浜西保育園:約510m、徒歩約7分
- 石浜保育園:約700m、徒歩約9分、自転車約4分
- 緒川保育園:約2,550m、車で約5分、自転車約13分
- 石浜西小学校:約710m、徒歩約9分
- 東浦中学校:約1,550m、徒歩約20分
ショッピング施設
- ショッピングセンター アイプラザ:約470m、徒歩約6分、自転車約3分
- にぎわい市場マルス:約570m、徒歩約8分、自転車約3分
- V・drug 東浦店:約1,100m、徒歩約14分、自転車約6分
- イオンモール東浦:約2,650m、車で約8分、自転車約15分
金融機関
- 東浦石浜郵便局:約800m、徒歩約10分、自転車約4分
医療機関
- 耳鼻咽喉科みやこクリニック:約1,460m、徒歩約19分、自転車約8分
- よしだ眼科:約1,480m、徒歩約19分、自転車約8分
- ひだかこどもクリニック:約1,530m、徒歩約20分、自転車約8分
- 於大クリニック:約1,680m、車で約3分、自転車約9分
その他
- 吹付西公園:約150m、徒歩約2分、自転車約1分
- 吹付東公園:約530m、徒歩約7分、自転車約3分
- 三本松公園:約290m、徒歩約4分、自転車約2分
- 於大公園:約1,480m、徒歩約19分、自転車約8分
- うららん ひがしうら:約280m、徒歩約4分、自転車約2分
物件概要
(W-16)2025年8月完成済
(W-25,W-26)2026年1月下旬完成予定
※W-25,W-26は2026年2月以降
[ウエストコート]分譲地内6m・分譲地外 南側約12m、西側約12m、北側約8m
ウエストコート:2023年7月
※掲載画像には一部CGパースを使用しております。実際とは多少異なる場合がございますので、予めご了承ください。設置されている家具・調度品等は販売価格に含まれません。

25年10月18日(土) ~25年10月19日(日) 10:00〜17:00
25年10月18日(土)
~25年10月19日(日)
10:00〜17:00
お待ちしております。
お問い合わせはこちら
定休日:火曜日・水曜日