• 補助金対象
  • 太陽光発電
全3戸
現地案内会開催!

サーラタウン西高師Ⅱ 第2次

価格 3,675万円 ~3,710万円
交通
豊橋鉄道渥美線「芦原」駅 徒歩約8分
所在地
豊橋市芦原町字西上113-1他

物件トップ

ご好評につき一次販売は完売しました!

家族の笑顔があふれる新しい暮らし

二次販売スタートします!

物件詳細

〔No3〕リビング
外観のモダンな印象と調和するよう、内装は明るい木目調のフローリングとホワイトの壁で統一。心地よいシンプルモダンな空間が広がります。
〔No3〕ダイニング
シンプルだからこそ、お好みの家具やインテリアで自分たちらしい空間を自由に創り出すことができます。
〔No3〕キッチン
明るい木目の床に映える清潔感のあるホワイトのワークトップと、落ち着いたトーンのキャビネットが、上質なキッチン空間を演出。油はねなどを防ぎながらも開放感を保つセミオープン型のカウンターで、機能性とデザイン性を両立しました。
〔No3〕
キッチン横の大容量パントリーは、食品ストックや調理器具だけでなく、家電も置ける棚を備え、常にキッチンをすっきりと保ちます。パントリーの奥は、なんとファミリークロークへ直結。季節の衣類や日用品を一箇所に集約でき家族全員の収納を担うだけでなく、着替えや身支度にも大変便利です。
〔No3〕
2階の主寝室は、明るい木目調のフローリングとホワイトの壁が、落ち着きのあるホテルライクな雰囲気を演出します。ゆったりとした空間で、上質な眠りをサポートします。
〔No3〕
寝室の奥には、広々としたウォークインクローゼットを配置。洋服はもちろん、季節家電や大型の荷物まですべて収納できるため、寝室空間を常にシンプルで美しい状態に保てます。
〔No3〕2階南側洋室
明るい木目のフローリングは清潔感があり、集中しやすい環境を提供。デスクとベッドを置いても余裕のある広さで、お子様の学習や遊びをしっかりとサポートします。壁面には可愛らしい装飾も可能で、お子様と一緒に「私だけの部屋」を創り上げることができます。
〔No3〕2階北側洋室
縦長窓と、横長の大きな窓の2つの窓から、安定した優しい光を取り込みます。家具を置いても邪魔にならない窓配置で、デスクスペースも確保されています。
〔No3〕玄関
壁面やドアのデザインをシンプルにすることで、ゆとりのある空間を確保。採光に配慮された縦長のスリット付きドアが、プライバシーを守りつつ、自然光を室内に優しく取り込みます。

おすすめポイント



利便と安心、育む住まい。






芦原駅から徒歩8分という利便性を享受しながら、
開放感と安心感に包まれた理想的な住環境。


上質な空間が日々の暮らしを
より豊かに彩ります。



設備仕様

太陽光発電
宅配ボックス
玄関タッチキー
EV充電用
コンセント
食器洗浄乾燥機
浴室暖房乾燥機

保証・性能

補助金対象
耐震等級3
長期優良住宅
壁外断熱
高性能樹脂窓
50年保証+
50年点検

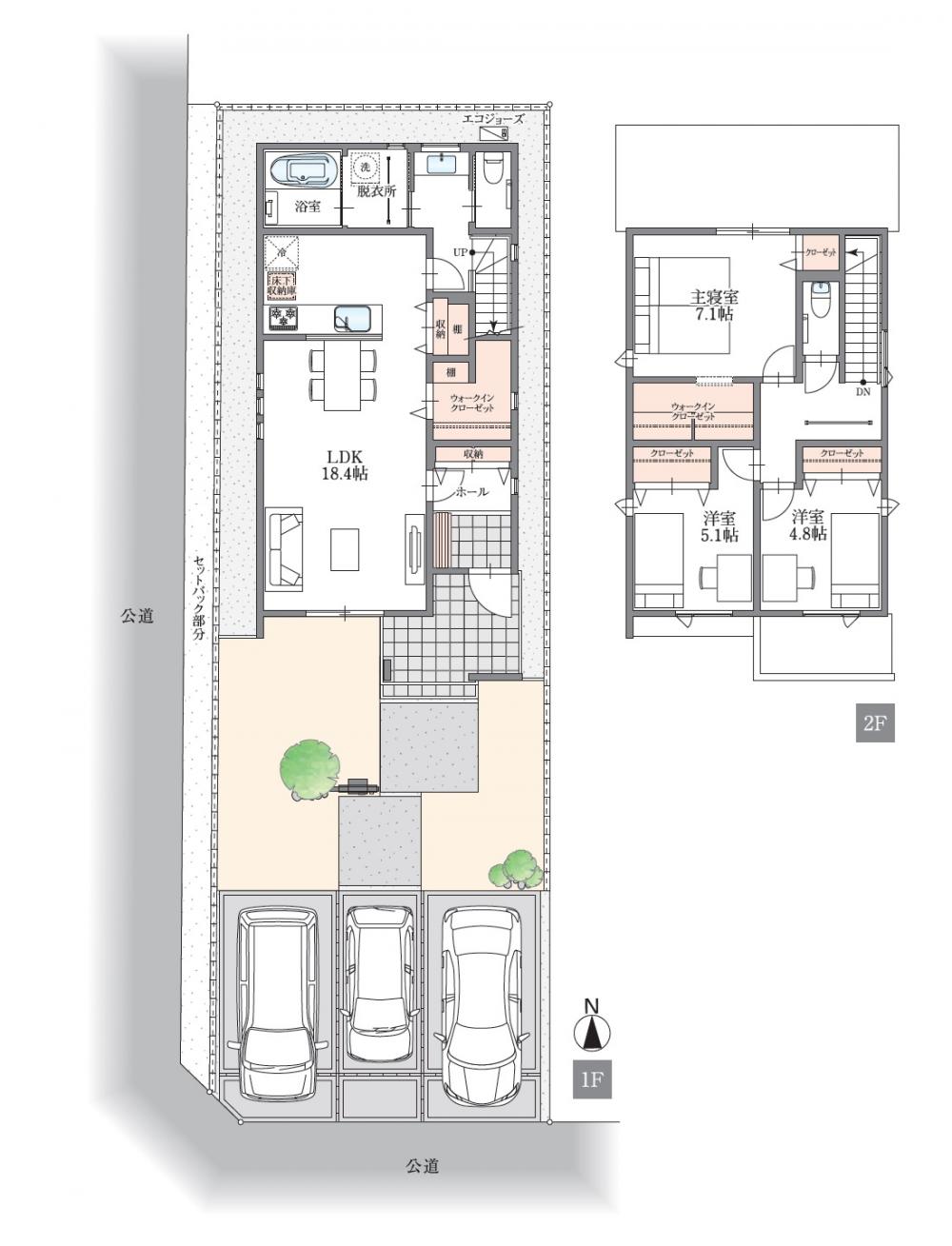
区画・間取り図

区画図
区画図
間取り図
No.1
No.1
販売価格 3,710万円 (税込)
間取り 3LDK
敷地面積 156.81m2 (47.43坪)
延床面積 97.72m2 (29.56坪)
間取り図
No.2
No.2
販売価格 3,675万円 (税込)
間取り 3LDK
敷地面積 155.47m2 (47.02坪)
延床面積 98.55m2 (29.81坪)
間取り図
No.3
No.3
販売価格 3,680万円 (税込)
間取り 3LDK
敷地面積 155.49m2 (47.03坪)
延床面積 98.56m2 (29.81坪)
No.1
No.2
No.3
1 /20

設備仕様

  • システムキッチン

    目に見えない裏側の部分まで高い耐久性を発揮できる上質なステンレスを採用したシステムキッチン。熱にも腐食にも強いです。

  • 洗面化粧台

    お手入れしやすい構造になっているため、清潔に保つことができます。

  • 室内干しポール

    忙しい朝もスムーズ!洗面所に便利な室内干しポール

  • システムバス

    お湯が冷めにくい浴槽保温材と保温組フタの「ダブル保温構造」の浴槽、3種類の吐水モードを搭載した「エコアクアシャワー」、ヒートショック対策「浴室暖房」など嬉しい機能が充実。

  • 1階トイレ

    お掃除リフトアップ機能でフタが真上にしっかり上がり、お掃除できなかったすき間汚れが奥まで楽に拭き取れて、気になるにおいの元もカットできます。

  • 宅配ボックス

    体調が悪い時や身支度が整ってない時でも、気にせず荷物を受け取れるのが嬉しいポイントです。

保証・性能

  • 耐震等級3(最高ランク)

    耐震等級3は建築基準法(等級1)の1.5倍の耐震性能。震度7クラスの地震にも耐え、地震保険料も半額に。

  • 長期優良住宅

    国が定めた厳しい基準をクリアした快適な住まいを提供。税制優遇も受けられ、安心とお得を両立する「いい家」の基準。

  • 断熱等級5 ZEH基準

    高い断熱性能で光熱費を抑え、一年中快適な暮らしを実現。家計にも環境にも優しい、ZEH基準の分譲住宅です。

  • 壁外断熱工法

    壁外断熱工法は、柱の外側を断熱材で覆うため、高気密・高断熱を実現。結露や劣化を防ぎ、家が長持ちします。

  • 高性能樹脂窓

    高性能樹脂窓は、熱の流出を約6割削減。快適で経済的な暮らしを実現します。

  • ゼロソーラーサービス

    毎月定額の利用料を支払うだけで、発電した電気を自由に使うことができます。災害時にも日中電気を使えるため、ご家族の安全を守るための備えにもなります。

  • 50年点検・50年保証

    サーラ住宅は50年点検・保証で安心を提供。業界屈指のアフターサービスで、大切な住まいを長期サポートします。

  • 24時間受付対応

    アフターサービス専任チームと24時間緊急ダイヤルで、迅速かつ的確に対応します。

  • 建築物省エネ表示制度

    ※販売住戸が複数の場合、本ラベルは特定の住戸の性能を示すものであり全ての住戸の性能を示すものではありません。

地図・周辺情報

周辺施設

  • 芦原小学校 徒歩8分

    芦原小学校 徒歩8分

  • 大岩クリニック

    大岩クリニック

  • サンヨネ高師店

    サンヨネ高師店

周辺詳細情報

交通機関

  • 豊橋鉄道渥美線「芦原」駅:約594m/徒歩約8分
  • 豊橋鉄道渥美線「高師」駅:約850m/徒歩約12分
  • JR東海道本線「豊橋」駅:約5,320m/自動車約16分

教育施設

  • 芦原保育園:約250m/徒歩約4分
  • 認定こども園円通寺保育園:約858m/徒歩約11分
  • 芦原小学校:約558m/徒歩約7分
  • 本郷中学校:約1,900m/徒歩約24分

ショッピング施設

  • セブンイレブン豊橋西高師店:約608m/徒歩約8分
  • サンヨネ高師店:約555m/徒歩約7分
  • ココカラファイン西高師店:約429m/徒歩約6分

金融機関

  • 名古屋銀行豊橋ミラまち店:約1,530m/徒歩約19分
  • 豊橋高師郵便局:約1,040m/徒歩約13分

医療機関

  • 大岩クリニック:約646m/徒歩約8分
  • 曽我歯科医院:約621m/徒歩約8分
  • かわい小児科:約504m/徒歩約7分

その他

  • 高師緑地:約981m/徒歩約13分

物件概要

名称
サーラタウン西高師Ⅱ 第2次
所在地
豊橋市芦原町字西上113-1他
交通
豊橋鉄道渥美線「芦原」駅 徒歩約8分
総区画数
7区画
今回販売戸数
3戸
価格
3,675万円~3,710万円 (税込)
構造
木造軸組工法2階建
建物完成時期
2025年9月完成
引渡し可能時期
即引渡し可
地目
宅地
都市計画区域
市街化区域
用途地域
第一種住居地域
建築確認番号
[No.5] 確認サービス第KS123-0410-50970号(2025.4.24)他
道路・私道負担
公道南約4.52mアスファルト舗装
設備
電気(サーラeエナジー)、都市ガス(サーラE&L)、公営上水道、公共下水道
その他制限事項
その他:埋蔵文化財包蔵地(西上遺跡)
その他
※パース図を使用しております。パース図は完成予想図であり、実際とは異なる場合があります。
取引態様
売主
お問い合わせ
豊橋営業所 愛知県豊橋市柱四番町6-1 TEL.0120-124-790
情報提供日
2026年3月16日
次回更新予定日
2026年3月30日
取引条件有効期限
2026年4月30日
1
現地案内会日程

26年3月21日(土) ~26年3月22日(日)  10:00〜17:00

26年3月21日(土) ~26年3月22日(日)
 10:00〜17:00

上記の日程で、担当者が現地で
お待ちしております。

お問い合わせはこちら

0120-124-790 受付/営業時間:10:00~17:00 
定休日:火曜日・水曜日

周辺の物件

フォレストヒルズ高師みなみ
  • 即入居可
  • レジリエンス分譲
  • モデルハウス分譲
  • 愛知県豊橋市

    フォレストヒルズ高師みなみ

    価格3,590万円

    フォレストヒルズ高師みなみII
  • 価格改定
  • 愛知県豊橋市

    フォレストヒルズ高師みなみII

    価格3,449万円~3,670万円

    サーラガーデン上野町Ⅲ
  • 価格改定
  • 愛知県豊橋市

    サーラガーデン上野町Ⅲ

    価格3,899万円~4,230万円

    New
    サーラタウン弥生町~南通り~
  • 即入居可
  • 補助金対象
  • 愛知県豊橋市

    サーラタウン弥生町~南通り~

    価格3,698万円~3,850万円

    最近チェックした物件